Casa Condominio para Venda - 94.47m², 3 dormitórios, sendo 1 suites, 1 vaga - Medianeira

024024-UP Código
3 Dormitórios
1 Suítes
3 Banheiros
1 Vagas
94m² Área Privativa

Descrição do Imóvel

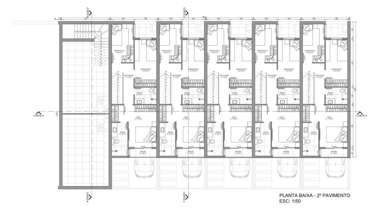
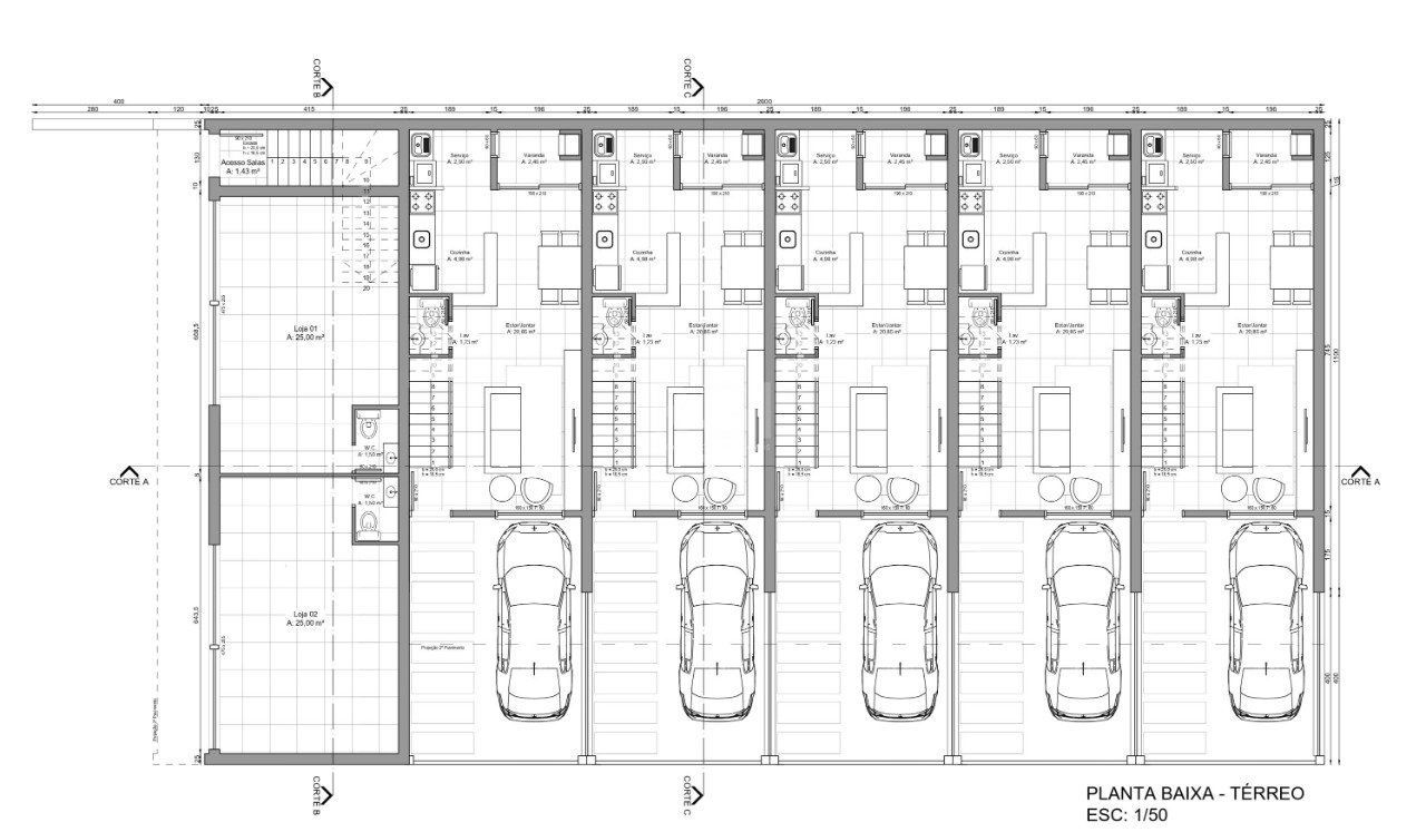
O Rechden Residencial é um conjunto exclusivo de 5 sobrados geminados, localizado em rua tranquila, próximo a centro comercial e a apenas 5 minutos do centro de Porto Alegre.

Com 94,47 m² privativos, cada unidade conta com living para dois ambientes, lavabo, cozinha americana e pátio com churrasqueira. No andar superior, são 3 dormitórios, sendo 1 suíte com sacada, além de piso laminado na área íntima.

Os imóveis oferecem ainda escada com corrimão e guarda-corpo, iluminação embutida, pintura de qualidade, vaga de garagem com portão eletrônico, além de infraestrutura para split, monitoramento, câmeras e cerca elétrica.

Entre em contato e saiba mais!


Características do Imóvel

"Área de serviço
Cozinha americana
Lavabo"
Precisando, é só
chamar!
Atendimento

Olá! Como podemos te ajudar?

R$ 529.000,00 Agendar visita
Link copiado!